
Продается жилой дом 221,1 кв. м. на земельном участке 3 сотки в д. Часовня городского округа Люберцы Московской области. Прибыльный бизнес: дом сдается в аренду, ежемесячный доход 150 000 руб., окупаемость всего 8 лет (!)
Дом кирпичный, очень теплый, размеры: 14 на 8 метров. Крыша металлочерепица, окна пластиковые стеклопакеты. По документам дом жилой, возможна постоянная регистрация по месту жительства (почтовый адрес присвоен, домовая книга имеется). Коммуникации: электричество 3 фазы, мощность 15 кВт, вода в доме (центральная), канализация – септик, отопление посредством газового котла.
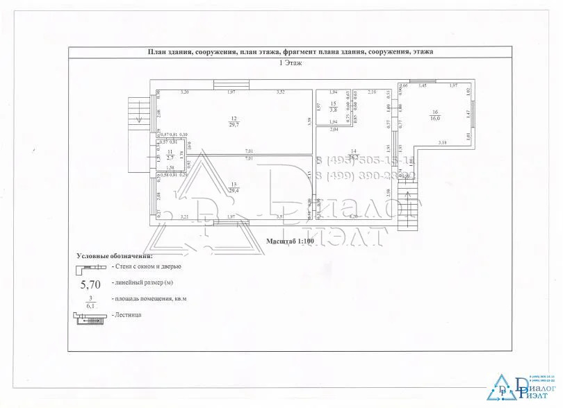
В доме имеется полноценный цокольный этаж общей площадью 102,3 кв. м.: бойлерная: газовый котел, бесперебойник, насосы и т.д., три помещения по 25 кв. м. каждое с кухонной зоной, в каждом помещении раздельный санузел. На первом этаже так же четыре помещения 29 кв. м., 29 кв. м., 26 кв. м. (три из которых оборудованы кухонными зонами и раздельным санузлом) и 16 кв. м.
Земельный участок категории земли населенных пунктов, разрешенное использование: при домовладении, ровный, огорожен профнастилом. На участке помимо дома расположено хозяйственное помещение, которое при желании так же можно утеплить и сдавать в аренду.
Деревня Часовня относится к поселку Томилино городского округа Люберцы, прямой выезд на Рязанское шоссе. Развитая инфраструктура: до автобусной остановки 300 метров или 5 минут пешком, несколько остановок на общественном транспорте до МЦД-3 Томилино, в пешей доступности магазин Дикси. До МКАД всего 10 км., удобный выезд на Егорьевское и Новорязанское шоссе. До ближайших станций метро: 15 минут до Выхино на электричке, 5 минут на автомобиле до Котельников.
По документам: основание права собственности – наследство по закону, более 3 лет в собственности, полная стоимость в договоре (!). Взрослый собственник, прямая (свободная) продажа. Недвижимость юридически свободна. Возможна продажа по ипотеке. Для покупателей без достаточной суммы наличных денежных средств или вообще без них поможем одобрить ипотечный кредит (сотрудничаем со всеми банками). Звоните.
16500000 руб. | 249969 $ | 219060 €